大阪府吹田市片山町4丁目の中古一戸住宅の販売を開始しました。
JR吹田駅から北西へ徒歩11分の閑静な住宅地にあります。
2014年(平成27年)4月築、築後11年の美宅です。

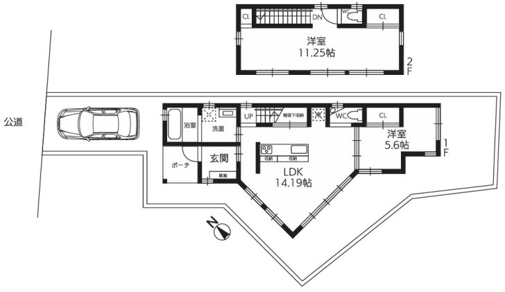
↑間取り図
現況は2LDKの間取りですが、2階を2室に仕切れば3LDKになります。

↑販売資料

↑物件外観

↑LDK

↑LDK

↑LDK



↑キッチン

↑1階洋室

↑洗面室

↑浴室

↑1階トイレ

↑階段

↑2階洋室

↑2階洋室

↑2階洋室

↑2階洋室

↑2階洋室

↑2階洋室

↑2階洋室

↑2階洋室のクローゼット

↑2階洋室

↑2階トイレ

↑1階LDKにあるバルコニー

↑販売資料

↑地図
お気軽にお問い合わせください。
***********************************************************
芦屋市・西宮市の不動産のご相談はエースホームへ
兵庫県芦屋市宮川町7-17(県立芦屋高校東側)
TEL 0797-38-0500
↓エースホームトップページ
http://www.acehome-joho.co.jp/
↓芦屋市・西宮市 物件ページ
https://www.acehome-joho.co.jp/b/p/search.php?c=0
***********************************************************
↓Twitter(ツイッター)に毎日物件情報を投稿してます
https://twitter.com/acehome_susami
↓YouTube(ユーチューブ)にマンション情報をアップしてます
https://www.youtube.com/user/sammy3270
↓facebook(フェイスブック)もやってます
https://www.facebook.com/nobuyuki.susami
YAHOO!ブログは終了となり、amebaブログに転載しました
↓食べ歩きブログはこちら
https://ameblo.jp/sammy-acehome/
#芦屋市 #西宮市 #不動産 #一戸建て #マンション #土地
#JR芦屋駅 #さくら夙川駅 #芦屋川駅 #夙川駅 #阪神芦屋駅
#JR芦屋駅 #打出駅 #香櫨園駅 #JR西宮駅 #阪神西宮駅





