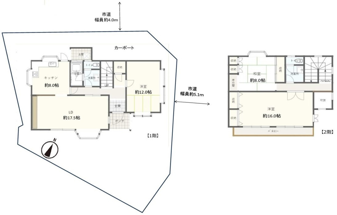
 Bk28357
|
西宮市甲陽園西山町8−40 |
4,780万円 |
阪急甲陽線 甲陽園駅 |
− 8分 |
442m2 164.46m2 |
7LDK+納戸 木造 |
S59/10 居住中 |
|
  
|
◆道路間口の広い区画で陽当たり良好!
◆高台立地で大阪湾一望のパノラマ眺望あり♪
◆土地約133.7坪付
◆6LDK+納戸の間取りです
◆シャッター付の掘込車庫21.84u付
◆阪急「甲陽園駅」徒歩8分
◆阪急オアシス甲陽園店・徒歩7分/イカリスーパー甲陽園店・徒歩8分
◆閑静な住宅地です |
Bk25641
|
西宮市甲陽園山王町2−47 |
4,980万円 |
阪急甲陽線 甲陽園駅 |
− 10分 |
283.27m2 255.4m2 |
5LDK 鉄筋コンクリート造 |
S62/12
 居住中 |
|
 
|
◆南ひな壇立地で陽当たり通風良好!
◆西宮市内と海を望む眺望あり
◆土地面積約85.68坪あり
◆鉄筋コンクリート造で建物面積約77.25坪の5LDKです
◆建替え用の土地をお探しの方もご検討ください
◆阪急「甲陽園駅」徒歩10分
◆山王東公園・徒歩2分/いかりスーパー甲陽園店・徒歩10分/コープ甲陽園・徒歩10分/阪急オアシス甲陽園店・徒歩11分 |
Bk27846
|
西宮市苦楽園四番町1−10 |
4,980万円 |
JR東海道線 JR芦屋駅 |
10分 1分 |
162.75m2 114.98m2 |
3SLDK 木造 |
H25/02 空家 |
|
  
|
◆南ひな壇立地で陽当たり良好!
◆土地面積約49.23坪あり
◆2013年(平成25年)2月築の美宅です
◆LDKは約21.1帖あり/ロフトあり
◆2025年7月リフォーム済:クロス全室貼替/畳新調/シャワーヘッド交換/シャワーホース交換/ハウスクリーニング
◆駐車場は並列2台分あり
◆JR「芦屋駅」バス13分「苦楽園五番町」バス停まで徒歩1分/阪急「夙川駅」バス14分「苦楽園五番町」バス停まで徒歩1分・「苦楽園口駅」バス9分「苦楽園五番町」バス停まで徒歩1分 |
Bk28183
|
西宮市宮前町5−15 |
 4,980万円 |
阪神本線 西宮駅 |
− 12分 |
70.5m2 90.36m2 |
3LDK 木造 |
H13/07
 空家 |
|
  
|
◆南向き陽当たり良好!
◆LDKは約18.0帖あり/全居室は2面採光で明るいです/全居室に収納あり/バルコニー2カ所付
◆2025年12月リフォーム完成渡し:クロス全室貼替/フロアタイル貼り/網戸張替/スイッチ・コンセントカバー取替/システムキッチン交換/ユニットバス交換/洗面化粧台交換/トイレ2か所交換/建具全て交換ハウスクリーニング/屋根・外壁塗装
◆駐車場は並列2台分あり(サイズ制限あり)
◆阪神「西宮駅・徒歩11分・「香櫨園駅」徒歩12分・/JR「さくら夙川駅」徒歩18分/阪急「夙川駅」徒歩25分
◆宮前公園まで徒歩2分/サンディ香櫨園店・徒歩4分/セブンイレブン西宮香櫨園店・徒歩6分/川添公園・徒歩8分/マンダイ西宮前浜店・徒歩10分
◆閑静な住宅街です |
 Bk27892
|
西宮市大社町4−13 |
 4,990万円 |
阪急甲陽線 苦楽園口駅 |
− 15分 |
81.06m2 81.56m2 |
3LDK 木造 |
R07
 完成済 |
|
  
|
◆南側が隣地通路で陽当たり良好!
◆土地面積約24.52坪あり
◆建物面積約28.45坪の3LDKです
◆LDKは約15.43帖あり/システムキッチンは食洗機と浄水器一体型水栓付/全居室に窓と収納あり/浴室は暖房乾燥機付/駐車場あり
◆阪急「苦楽園口駅」徒歩15分
◆広田山公園・徒歩2分/関西スーパー 大社店・徒歩5分/ロイヤルホームセンター西宮店・徒歩8分 |
Bk27944
|
西宮市川西町10−25 |
5,060万円 |
阪神本線 香櫨園駅 |
− 6分 |
87.8m2 113.6m2 |
4LDK 木造 |
R08/01
 建設中 |
|
  
|
◆角家で陽当たり通風良好!
◆北西側公道と西側公道に面した角地です
◆子育てグリーン住宅支援事業の補助対象物件
◆駐車場あり
◆阪神「香櫨園駅」徒歩6分/JR「さくら夙川駅」徒歩15分/阪急「夙川駅」徒歩18分
◆夙川公園・徒歩4分/森具公園・徒歩6分/ライフ夙川・徒歩8分
◆人気の香櫨園小学校・浜脇中学校区です |
Bk26081
|
西宮市甲陽園若江町1−24 |
5,100万円 |
阪急甲陽線 甲陽園駅 |
− 5分 |
200.74m2 71.9m2 |
6SLDK 木造 |
S53/03 空家 |
|
  
|
◆南向き南西角家で陽当たり通風良好!
◆建物2棟を合わせての売却です
◆6SLDKと3DKの間取です
◆駐車場あり
◆建替え用の土地としてもご検討ください
◆阪急「甲陽園駅」徒歩5分
◆いかりスーパー甲陽園店・徒歩5分/阪急オアシス甲陽園店・徒歩6分/ファミリーマート甲陽園駅前店・徒歩6分
◆甲陽園小学校・徒歩8分/大社中学校・徒歩6分 |
Bk28208
|
西宮市神園町10−32 |
5,200万円 |
阪急甲陽線 甲陽園駅 |
− 6分 |
183.33m2 141.3m2 |
5LDK 木造 |
S63/07 空家 |
|
  
|
◆陽当たり良好!
◆土地面積約55.45坪あり
◆建物面積約42.74坪の5LDKです
◆LDKは2面採光で明るいです/全居室に窓と収納あり
◆駐車場あり
◆阪急「甲陽園駅」徒歩6分
◆阪急オアシス甲陽園店・徒歩5分/いかりスーパー甲陽園店・徒歩6分/ファミリーマート甲陽園駅前店・徒歩7分 |
Bk26125
|
西宮市角石町1−7 |
 5,280万円 |
阪急甲陽線 苦楽園口駅 |
− 17分 |
162.46m2 178.55m2 |
4LDK 木造 |
H10/05 空家 |
|
  
|
◆西向き陽当たり良好!
◆土地面積約49.14坪あり
◆建物面積約54.01坪の5LDKです
◆2025年4月にリフォーム済:システムキッチン交換/ユニットバス交換/洗面化粧台交換/1階2階トイレ交換/給湯器交換/フロアタイル貼り/クロス張替/一部建具交換/網戸張替/ハウスクリーニング
◆電動シャッター付の駐車場は並列2台可
◆阪急「苦楽園口駅」徒歩17分・「甲陽園駅」徒歩24分
◆毘沙門公園・徒歩2分/セブンイレブン西宮樋之池町店・徒歩8分/樋之池公園・徒歩8分/関西スーパー苦楽園店・徒歩10分/コープ苦楽園・徒歩10分 |
Bk27874
|
西宮市浜町6−4 |
5,290万円 |
阪神本線 西宮駅 |
− 18分 |
80.91m2 80.84m2 |
3LDK 木造 |
R07
 建設中 |
|
  
|
◆東向き陽当たり良好!
◆駐車場あり
◆阪神「西宮駅」徒歩18分/阪神「西宮駅」バス6分「鞍掛町町」バス停徒歩2分
◆ローソン西宮久保町店・徒歩2分/西宮鞍掛郵便局・徒歩5分/西宮浜戎公園・徒歩5分/マンダイ西宮前浜町店・徒歩8分
◆人気の浜脇小学校・浜脇中学校区です |
Bk25222
|
西宮市甲陽園山王町2−9 |
 5,300万円 |
阪急甲陽線 甲陽園駅 |
− 5分 |
203.23m2 129.17m2 |
4SLDK 木造 |
H11/03 居住中 |
|
  
|
◆南向き陽当たり良好!
◆土地面積約61.47坪あり
◆1999年(平成11年)3月築の4SLDKです
◆室内は丁寧にお使いです/高台立地で西宮市内を望む眺望あり
◆ビルトインガレージあり
◆阪急「甲陽園駅」徒歩7分
◆日之出町桜公園・徒歩3分/西宮甲陽園郵便局・徒歩4分/ファミリーマート甲陽園駅前店・徒歩6分/いかりスーパー甲陽園店・徒歩7分/阪急オアシス甲陽園店・徒歩8分
◆人気の甲陽園小学校・大社中学校区です |
Bk26656
|
西宮市苦楽園二番町18−48 |
5,380万円 |
阪急神戸線 夙川駅 |
12分 8分 |
203.37m2 245.3m2 |
4SLDK 木造 |
H01/08 空家 |
|
  
|
◆東向き陽当たり良好!
◆土地面積約61.51坪あり
◆建物面積約74.2坪の4SLDKです
◆令和6年9月リフォーム済:システムキッチン交換/洗面化粧台交換/トイレ交換/全室床材張替/畳表替え/網戸張替/外壁タイル洗浄/等
◆駐車スペースは並列2台可
◆阪急「夙川駅」へバス12分・「苦楽園」バス停まで徒歩8分/JR「芦屋駅へバス12分「苦楽園」バス停まで徒歩8分/阪急「甲陽園駅」徒歩20分 |
Bk27236
|
西宮市苦楽園一番町7−1 |
5,380万円 |
阪急甲陽線 苦楽園口駅 |
7分 2分 |
225.46m2 110.41m2 |
4LDK 木造 |
H21/02 居住中 |
|
  
|
◆南東向き陽当たり良好!
◆土地面積約68.2坪あり
◆2009年(平成21年)築で室内丁寧にお使いです
◆建物面積約33.39坪の4LDKです
◆駐車スペースは2台可
◆阪急「夙川駅」へバス11分「苦楽園一番町」バス停まで徒歩2分・「苦楽園口駅」バス7分「苦楽園一番町」バス停まで徒歩2分/JR「芦屋駅へバス13分「苦楽園一番町」バス停まで徒歩2分/阪急「苦楽園口駅」徒歩18分 |
Bk27999
|
西宮市甲陽園西山町5−67 |
5,500万円 |
阪急甲陽線 甲陽園駅 |
− 5分 |
277.81m2 129.21m2 |
5DK 木造 |
S56/08 空家 |
|
  
|
◆東向き陽当たり通風良好!
◆南ひな壇立地で西宮市内と海を望む眺望あり
◆土地面積約84.03坪あり
◆建物面積約39.08坪の5DKです/南庭でBBQも可
◆掘り込車庫あり
◆阪急「甲陽園駅」徒歩5分
◆ファミリーマート甲陽園駅前店徒歩4分/いかりスーパー甲陽園店・徒歩5分/阪急オアシス甲陽園店・徒歩6分 |
Bk28267 |
西宮市苦楽園四番町5−40 |
5,500万円 |
阪急神戸線 夙川駅 |
12分 4分 |
165.86m2 110.84m2 |
4SLDK 木造 |
H23/12 空家 |

|
|
◆南向き陽当たり通風良好!
◆南側幅員約6.0mに面した区画です
◆2011年12月築です
◆駐車場は2台分あり
◆苦楽園五番町のバス停徒歩4分です
◆阪急「夙川駅」バス12分「苦楽園」バス停徒歩4分・「苦楽園口駅」バス9分「苦楽園」バス停徒歩4分/JR「芦屋駅」バス12分「苦楽園」バス停徒歩4分 |
Bk28077
|
西宮市苦楽園六番町5−43 |
5,580万円 |
JR東海道線 JR芦屋駅 |
12分 2分 |
261.85m2 152.07m2 |
3LDK 木造 |
S62/12 空家 |
|
  
|
◆北東角家で陽当たり通風良好!
◆土地面積約79.2坪あり
◆建物面積約46.0坪の3LDKです
◆明るい南向きのお庭あり/南ひな壇立地で大阪湾一望の眺望あり♪
◆駐車場あり
◆JR「芦屋駅」バス12分「苦楽園五番町」バス停徒歩2分/阪急「夙川駅」バス13分「苦楽園五番町」バス停徒歩2分/阪急「苦楽園口駅」バス10分「苦楽園五番町」バス停徒歩2分
◆苦楽園六番公園・徒歩1分/関西スーパー苦楽園店・徒歩11分/セブンイレブン西宮樋之池町店・徒歩11分/コープ苦楽園・徒歩15分 |
Bk27245
|
西宮市新甲陽町1−15 |
5,600万円 |
阪急甲陽線 甲陽園駅 |
− 15分 |
265.87m2 172.34m2 |
6LDK+S 木造 |
S47/04 空家 |
|
  
|
◆北西角家で陽当たり通風良好!
◆南西側公道幅員約6.62mの北側公道幅員約5.2〜5.6mに面した区画です
◆土地面積・約80.41坪あり
◆建物面積約52.13坪の6LDK+Sの間取りです
◆広い南庭あり/駐車場あり
◆阪急「甲陽園駅」徒歩15分
◆コープ甲陽園・徒歩5分/西宮新甲陽郵便局・徒歩6分/大池公園・徒歩8分 |
Bk25137
|
西宮市苦楽園三番町10−3 |
5,980万円 |
阪急甲陽線 夙川駅 |
12分 8分 |
453.73m2 199.62m2 |
7LDK 木造 |
H01/02 居住中 |
|
  
|
◆南向き陽当たり通風良好!
◆土地面積約137.25坪あり/南側公道幅員約5.0mに面す
◆建物面積約35.89坪の7SLDKです
◆西宮市内と大阪湾一望の眺望あり
◆駐車場は2台あり
◆建替え用の土地としてもご検討ください
◆阪急「夙川駅」へバス12分「苦楽園」バス停まで徒歩8分・「苦楽園」バス9分「苦楽園」バス停まで徒歩8分/JR「芦屋駅へバス12分「苦楽園」バス停まで徒歩8分 |
Bk27109
|
西宮市甲陽園山王町5−1 |
5,980万円 |
阪急甲陽線 甲陽園駅 |
− 8分 |
198.18m2 109.35m2 |
3LDK 木造 |
H27/05 空家 |
|
  
|
◆南庭もあり陽当たり良好!
◆土地面積約59.94坪あり
◆2015年(平成27年)5月築で建物面積約33.07坪の3LDKです
◆LDKは約21.2帖あり/全居室は2面採光で明るいです/眺望のある屋上ルーフバルコニー付
◆2025年1月リフォーム済:クロス張替/CF張替/障子張替/襖張替/洗面室フロアタイル貼り/ウッドデッキ塗装/玄関ポーチ手すり新調/ガスコンロ新調/玄関ポーチ新設/駐車場樹脂塗装/全室ハウスクリーニング
◆カーポート1台分とカースペース1台分の合計駐車場2台分付
◆阪急「甲陽園駅」徒歩8分
◆駅前に阪急オアシスやいかりスーパー・ファミリーマートあり
◆閑静な住宅街です |
Bk27648
|
西宮市川添町2−25−2 |
5,980万円 |
阪神本線 香櫨園駅 |
− 8分 |
96.36m2 126.36m2 |
4SLDK 木造 |
R04/03 居住中 |
|
  
|
◆陽当たり良好!
◆2022年3月築で建物面積約38.22坪の4SLDKです
◆LDKは約18.9帖あり床暖房付(畳コーナーもあり)/システムキッチンは浄水器と食洗機付/納戸表示のお部屋は洋室です/1616サイズの浴室は暖房乾燥機付/洗面化粧台はタッチレス水栓付/玄関にシューズインクローゼットあり/2階と3階にバルコニーあり
◆阪神「香櫨園駅」徒歩8分・「西宮駅」徒歩15分/JR「さくら夙川駅」徒歩15分/阪急「夙川駅」徒歩21分
◆サンディ香櫨園店・徒歩2分/セブンイレブン西宮香櫨園店・徒歩2分/川添公園・徒歩2分/夙川公園・徒歩2分/西宮市立図書館・徒歩2分/スーパーマンダイ西宮前浜町店・徒歩7分/御前浜公園(香櫨園浜)・徒歩10分
◆人気の香櫨園小学校・浜脇中学校区です
|