 Bk28204
|
西宮市城山12−8 |
4,200万円 |
阪急甲陽線 苦楽園口駅 |
− 13分 |
103m2 80.27m2 |
4LDK 木造 |
S52/09 空家 |
|
  
|
◆西向き陽当たり良好!
◆2014年(平成26年)頃のリフォーム履歴あり:システムキッチン交換/浴槽交換/洗面化粧台交換/洗濯機用防水パン交換/トイレ交換(温水洗浄便座付)/フローリング張替/クロス張替/CF張替/建具交換/床暖房交換/エコキュート交換/外壁塗装/屋根塗装/雨戸の塗装/等
◆設備保証付
◆堀込車庫あり
◆阪急「苦楽園口駅」徒歩13分・「夙川駅」徒歩20分/JRさくら夙川駅」徒歩21分
◆ニテコ池・徒歩3分/広田山公園・徒歩4分/ファミリーマート西宮名次町店・徒歩9分/ウエルシア西宮北名次店・徒歩10分 |
Bk26629
|
西宮市神垣町10−84 |
4,480万円 |
阪急甲陽線 苦楽園口駅 |
− 17分 |
261.16m2 115.83m2 |
3SLDK 軽量鉄骨造 |
S59/11 居住中 |
|
  
|
◆東向き陽当たり良好!
◆南ひな壇立地で西宮市内一望の眺望あり♪
◆土地面積約79.0坪あり
◆セキスイハイム施工の軽量鉄骨造で建物面積約35.03坪の3SLDKです
◆LDKは約16.5帖あり/全居室に窓と収納あり/駐車場あり
◆建替え用の土地としてもご検討ください
◆阪急「苦楽園口駅」徒歩17分 |
Bk27465
|
西宮市満池谷町7−33 |
14,300万円 |
阪急神戸線 夙川駅 |
− 15分 |
169.72m2 109.3m2 |
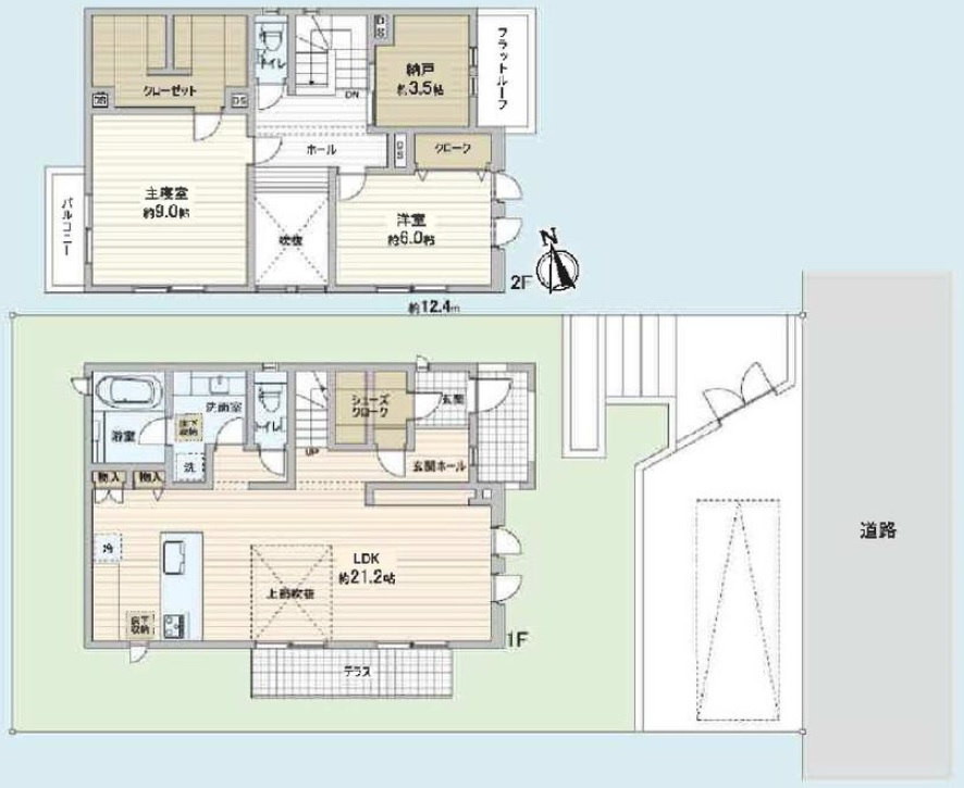
2SLDK 木造 |
H27/03 居住中 |
|
  
|
◆東向き陽当たり良好!
◆土地面積約51.34坪あり
◆2015年3月に三井ホーム(株)施工の美宅です
◆建物面積33.06坪の2SLDKです
◆LD の上部に吹き抜けあり/2階ホールに作業スペースあり/主寝室約9帖は大型のウォークインクローゼットあり/玄関に大型のシューズインクローゼットあり
/駐車場あり
◆阪急「夙川駅」徒歩15分・「苦楽園口駅」徒歩13分/JR「さくら夙川駅」徒歩16分
◆西田公園・徒歩5分/コープ夙川・徒歩9分
◆人気の大社小学校・大社中学校区です |