|
||||||
| 種目 | 所在地 | 土地面積 建物面積 |
構造 間取 |
|||
|---|---|---|---|---|---|---|
| 中古戸建 | 芦屋市親王塚町4−27 |
259.24m2 ( 78.42坪 ) 259.95m2 ( 78.63坪 ) |
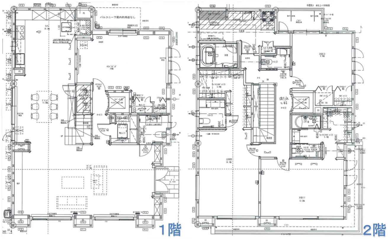
木造 4LDK+2S |
|||
◆南向き東南角家で陽当たり通風良好!
◆土地面積約78.42坪あり
◆2021年7月に大和ハウス(株)施工の注文建築です
◆建物面積約78.63坪の4LDKです
◆駐車場は並列2台分あり
◆JR「芦屋駅」徒歩11分/阪急「打出駅」徒歩7分/阪急「芦屋川駅」徒歩19分
◆ビックビーンズ芦屋店・徒歩6分/いかりスーパー芦屋店・徒歩7分/岩園公園・徒歩8分/コープデイズ芦屋・徒歩9分/大丸芦屋店・徒歩10分
| 物件番号 | Bk28431 | |||||||||||||||||
|---|---|---|---|---|---|---|---|---|---|---|---|---|---|---|---|---|---|---|
| 交通 | JR東海道線 JR芦屋駅まで 徒歩11分 阪神本線 打出駅まで 徒歩7分 阪急神戸線 芦屋川駅まで 徒歩19分 |
学校区 | 小学校区:岩園小学校 800m 中学校区:山手中学校 2300m |
|||||||||||||||
| 築年月 | R03/06 ( 築4年 ) | 接道 | 南 8.2m(幅員) 公道 9m(接面) 東 8.1m(幅員) 公道 18.1m(接面) |
|||||||||||||||
| 建ぺい率 | 60% | 容積率 | 200% | 現況 | 空家 | 引渡時期 | 即時 | 駐車場 | 有 | 私道面積 | 用途地域 | 第一種中高層住居専用地域 | 取引対応 | 仲介 | ||||
|
ローンを組むにあたり、月々の返済額をシミュレーションします。
|
||||||||||||||||||
地図
|
|
位置情報に関するご注意:おおよその場所であり、正確ではない場合があります。
![]()
- 株式会社エースホーム
- TEL:0797-38-0500
- FAX:0797-38-5888








