|
|||||
| 種目 | 所在地 | 専有面積 | 間取 構造 |
管理費 修繕積立費 |
|
|---|---|---|---|---|---|
| 中古マンション | 西宮市御茶家所町8−15 |
71.07m2 ( 21.49坪 ) | 3LDK 鉄筋コンクリート造 |
14,210円 22,955円 |
|
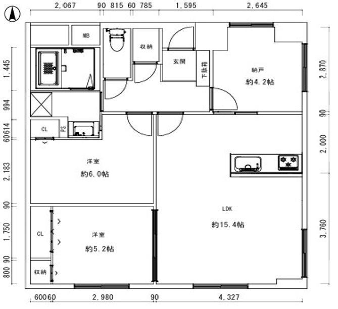
◆南向き陽当たり良好!
◆専有面積71.07uの3LDKです
◆LDKは約15.4帖あり/最上階6階のお部屋で眺望あり♪
◆2025年室内リフォーム済
◆敷地内駐車場・空き有り20,000円/月
◆阪急「夙川駅」徒歩7分/JR「さくら夙川駅」徒歩7分/阪神「香櫨園駅」徒歩7分
◆夙川公園・徒歩2分/片鉾池・徒歩3分/ライフ夙川店・徒歩5分/夙川グリーンタウン(ダイエーと専門店街あり)・徒歩6分/セブンイレブン西宮夙川店・徒歩7分
| 物件名 | Bm28170 | ロイヤルシャトー夙川公園 | |||||||||||||||||
|---|---|---|---|---|---|---|---|---|---|---|---|---|---|---|---|---|---|---|
| 交通 | 阪急神戸線 夙川駅まで 徒歩7分 JR東海道線 さくら夙川駅まで 徒歩7分 阪神本線 香櫨園駅まで 徒歩7分 |
学校区 | 小学校区:夙川小学校 1200m 中学校区:大社中学校 2080m |
|||||||||||||||
| 築年月 | H08/03 ( 築30年 ) | 階/階建 | 6階/地上6階建 | |||||||||||||||
| バルコニー面積 /方向 |
/南 | 現況 引渡時期 |
空室 即時 |
|||||||||||||||
| 総戸数 | 29戸 | 管理形態 管理人状況 |
全部委託 日勤 |
|||||||||||||||
| 駐車場 | 空有 | 駐車場料金 | 20,000円 | |||||||||||||||
| 用途地域 | 第一種中高層住居専用地域 | 取引態様 | 仲介 | |||||||||||||||
|
ローンを組むにあたり、月々の返済額をシミュレーションします。
|
||||||||||||||||||
地図
|
|
位置情報に関するご注意:おおよその場所であり、正確ではない場合があります。
![]()
- 株式会社エースホーム
- TEL:0797-38-0500
- FAX:0797-38-5888
4,980万円












