28142:中古戸建 中古一戸建て
| 価格 | 13,500万円 |
|---|---|
| 所在地 | 西宮市堀切町1-9 |
| 交通 | 阪神本線 香櫨園駅まで 徒歩6分 JR東海道線 さくら夙川駅まで 徒歩15分 阪急神戸線 夙川駅まで 徒歩18分 |
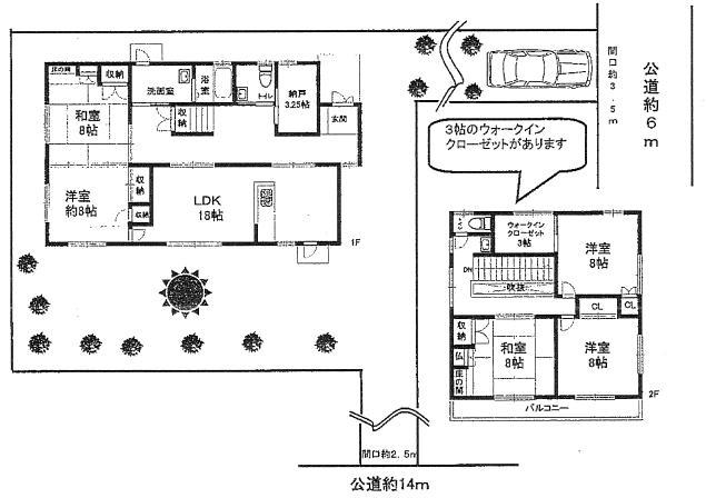
| 間取 | 5SLDK |
| 土地面積 | 503.82m²(152.4坪) |
| 建物面積 | 174.85m²(52.89坪) |
| 私道面積 | - |
| 築年月 | 1996/07 |
| 学区 | 小学校区:香櫨園小学校 100m 中学校区:浜脇中学校 850m |
| 建物構造 | 木造 |
|---|---|
| 階建 | 地上2階建 |
| 建ぺい率 | |
| 容積率 | |
| 地目 | 宅地 |
| 用途地域 | 第一種中高層住居専用地域 |
| 土地権利 | 所有権 |
| 取引態様 | 仲介 |
| 引渡時期 | 即時 |
| セットバック | |
|---|---|
| 接道 | 東 6m(幅員) 公道 3.6m(接面) 南 14.9m(幅員) 公道 2.8m(接面) |
| 諸費用 | |
| 他法条例 | |
| 建築確認番号 | |
| 取引条件有効期限 | 令和07年12月10日 |
特色
南道路、陽当たり良好、大手ハウスメーカー施工、駐車場2台分以上、駅近物件、3沿線利用可
コメント
◆南側公道と東側公道に面し陽当たり良好!
◆土地面積503.82㎡(約152.40坪)あり
◆現パナソニックホームズ施工で建物面積約52.98坪の53SLDKです
◆LDKは約18帖あり/全居室に窓あり/広い南庭あり
◆阪神「香櫨園駅」徒歩6分・「西宮駅」徒歩18分/JR「さくら夙川駅」徒歩15分/阪急「夙川駅」徒歩18分
◆夙川公園・徒歩1分/上葭原公園・徒歩3分/西宮市立図書館・徒歩4分/サンディ香櫨園店・徒歩6分/セブンイレブン西宮香櫨園店・徒歩7分/スーパーマンダイ西宮前浜町店・徒歩14分
◆人気の香櫨園小学校・浜脇中学校区です
周辺地図
位置情報に関するご注意:おおよその場所であり、正確ではない場合があります。










