28043:売地 売り土地
| 価格 | 2,580万円 |
|---|---|
| 所在地 | 芦屋市朝日ケ丘町27-30 |
| 交通 | JR東海道線 JR芦屋駅まで バス18分 停歩3分 阪急神戸線 芦屋川駅まで バス18分 停歩3分 JR東海道線 JR芦屋駅まで バス6分 停歩4分 |
| 土地面積 | 59.25m²(17.92坪) |
| 私道面積 | |
| 坪単価 | 143.94万円 |
| 学区 | 小学校区:朝日ケ丘小学校 600m 中学校区:山手中学校 2,300m |
| 建ぺい率 | 60% |
|---|---|
| 容積率 | 200% |
| 地目 | 宅地 |
| 用途地域 | 第一種中高層住居専用地域 |
| 現況 | 上物有 |
| 土地権利 | 所有権 |
| 取引態様 | 仲介 |
| 引渡時期 | 相談 |
| セットバック | |
|---|---|
| 接道 | 南東 4m(幅員) 公道 6.6m(接面) |
| 諸費用 | |
| 国土法届出 | 不要 |
| 都市計画 | 市街化区域 |
| 他法条例 | |
| 建築条件 | 条件無 |
| 取引条件有効期限 | 令和07年12月30日 |
特色
南向き、陽当たり良好、整形地、建築条件なし、2沿線利用可
コメント
◆南東向き陽当たり良好!
◆東南側公道幅員約4.0mに間口約6.6mが面した整形地です
◆建築条件無し/お好きなハウスメーカーや工務店で建築可
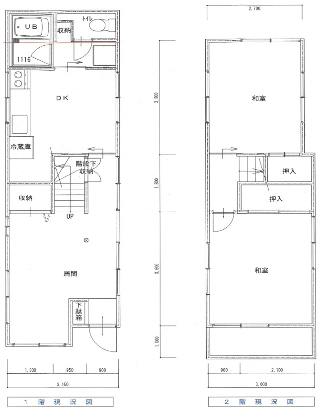
◆古家あり
◆JR「芦屋駅」徒歩18分/阪急「芦屋川駅」徒歩18分/JR「芦屋駅」バス6分「水道橋」バス停まで徒歩4分/阪急「芦屋川駅」バス13分「水道橋」バス停徒歩4分
◆朝日ケ丘南緑地・徒歩1分/ウエルシア芦屋朝日ケ丘店・徒歩3分/コープミニ東山・徒歩5分/いかりスーパー芦屋店・徒歩8分
周辺地図
位置情報に関するご注意:おおよその場所であり、正確ではない場合があります。









