27356:中古戸建 中古一戸建て
| 価格 | 7,280万円 |
|---|---|
| 所在地 | 西宮市鷲林寺南町23-12 |
| 交通 | 阪急神戸線 夙川駅まで バス13分 停歩3分 |
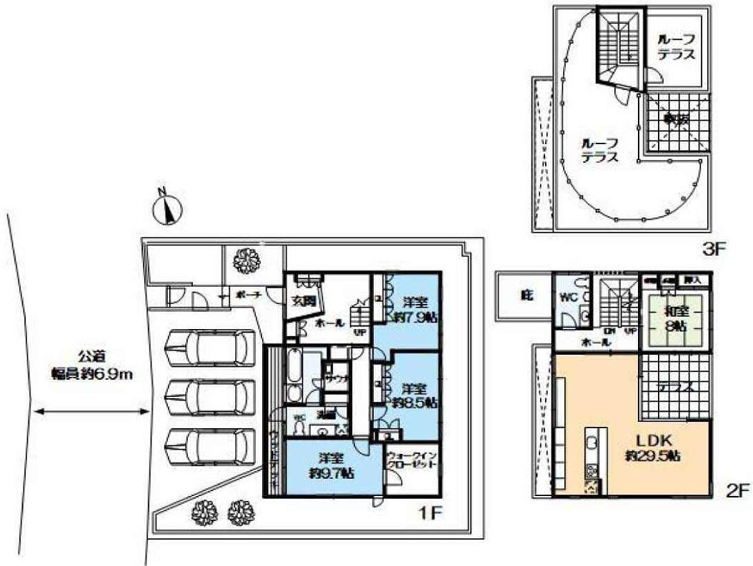
| 間取 | 4LDK |
| 土地面積 | 275.61m²(83.37坪) |
| 建物面積 | 180.24m²(54.52坪) |
| 私道面積 | - |
| 築年月 | 2002/04 |
| 学区 | 小学校区:苦楽園小学校 1,300m 中学校区:苦楽園中学校 1,400m |
| 建物構造 | 鉄骨造 |
|---|---|
| 階建 | 地上2階建 |
| 建ぺい率 | 40% |
| 容積率 | 100% |
| 地目 | 宅地 |
| 用途地域 | 第一種低層住居専用地域 |
| 土地権利 | 所有権 |
| 取引態様 | 仲介 |
| 引渡時期 | 即時 |
| セットバック | |
|---|---|
| 接道 | 西 6m(幅員) 公道 15m(接面) |
| 諸費用 | |
| 他法条例 | |
| 建築確認番号 | |
| 取引条件有効期限 | 令和07年11月29日 |
特色
陽当たり良好、駐車場2台分以上、リフォーム済、駐車場3台分以上あり
コメント
◆公道幅員約6.0mに面し陽当たり通風良好!
◆鉄骨造の2002年(平成14年)4月築でオール電化のデザイナーズ住宅です
◆LDKは約29.5帖あり/玄関・LDKは大理石貼り/浴室・洗面室は床暖房付/浴室はサウナ・ジャグジー・水風呂付/屋上はルーフテラス仕様/屋根付カーポートは3台分あり
◆2025年3月リフォーム済:正面外壁塗装/クロス張替/畳・襖張替/スイッチカバー取替/TVインターホン交換/温水洗浄便座交換/クローゼット鏡交換/室内塗装/補修工事/ハウスクリーニング/等
◆阪急「夙川駅」バス15分「鷲林寺南口」バス停まで徒歩3分
周辺地図
位置情報に関するご注意:おおよその場所であり、正確ではない場合があります。







