西宮市苦楽園六番町5-43

価格 5,580万円

1/25

物件番号「28296」をお伝えください。

電話でお問合せ

物件情報

価格 5,580万円
住所
西宮市苦楽園六番町5-43 地図
住居表示
交通 JR東海道線 JR芦屋駅まで バス12分 停歩2分
阪急神戸線 夙川駅まで バス13分 停歩2分
阪急甲陽線 苦楽園口駅まで バス10分 停歩2分
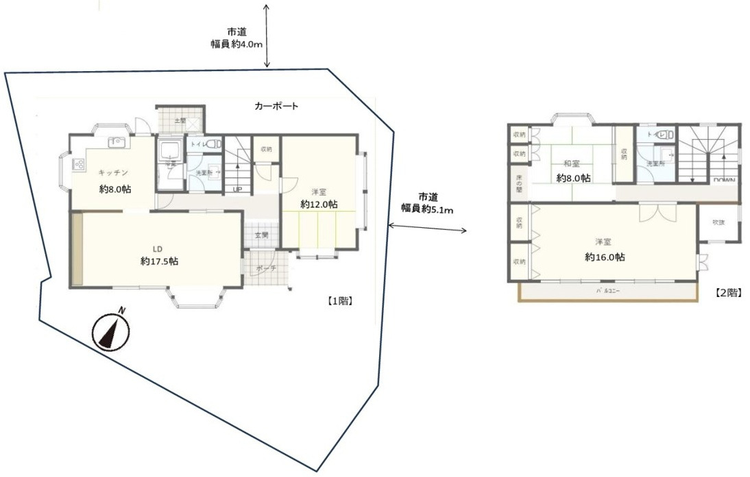
土地面積 261.85m²
坪単価 -
私道面積 -
接道 東 5.1m(幅員) 公道
北 4m(幅員) 公道
用途地域 第一種低層住居専用地域
建ぺい率 40%
容積率 100%
建築条件 条件無
現況 空家
引渡時期 即時
物件名 売り土地
小学校区 苦楽園小学校
中学校区 苦楽園中学校
取引態様 仲介
特徴 ◆北東角家で陽当たり通風良好!
◆土地面積約79.2坪あり
◆建物面積約46.0坪の3LDKです
◆明るい南向きのお庭あり/南ひな壇立地で大阪湾一望の眺望あり♪
◆建築条件なし/お好きなハウスメーカーや工務店で建築可
◆JR「芦屋駅」バス12分「苦楽園五番町」バス停徒歩2分/阪急「夙川駅」バス13分「苦楽園五番町」バス停徒歩2分/阪急「苦楽園口駅」バス10分「苦楽園五番町」バス停徒歩2分
◆苦楽園六番公園・徒歩1分/関西スーパー苦楽園店・徒歩11分/セブンイレブン西宮樋之池町店・徒歩11分/コープ苦楽園・徒歩15分
※掲載されている物件データが現状と異なる場合は現状を優先します。

更新情報

情報更新日 2026年03月17日
次回更新予定日 2026年03月18日
取引条件有効期限 2026年03月17日

ローンシミュレーション

物件価格 5,580万円
頭金 万円
金利
借入期間
再計算
月々の返済額
年間の返済額
返済総額
利息合計
※ 毎回の返済額が開始から終了まで均等となる「元利均等返済」で算出しています。
※ 金利は期間中固定となる固定金利を採用しています。
※ 月々の返済額は小数点以下を繰り上げしております
※ シミュレーションでの結果は、あくまでも目安で、概算になります。実際にローン契約をする際は、詳細を金融機関にご確認ください。
※ 実際のローン契約時には諸費用・税金(手数料や印紙税、保証料など)が別途かかりますので、契約の際にご確認ください。

物件番号「28296」をお伝えください。

電話でお問合せ
電話でお問合せ メールでお問合せ
メールでお問合せ
OK