西宮市満池谷町7-33

価格 14,300万円

1/7

物件番号「27465」をお伝えください。

電話でお問合せ

物件情報

価格 14,300万円
住所
西宮市満池谷町7-33 地図
住居表示 
交通 阪急神戸線 夙川駅まで 徒歩15分
JR東海道線 さくら夙川駅まで 徒歩16分
阪急甲陽線 苦楽園口駅まで 徒歩13分
土地面積 169.72m²
建物面積 109.3m²
西暦築年月 2015/03
駐車場
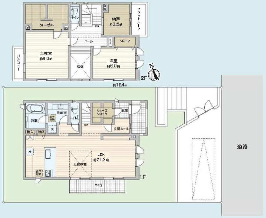
間取 2SLDK
建物構造 木造
物件名 中古一戸建て
接道 東 4.3m(幅員) 公道 9.4m(接面)
私道面積 -
用途地域 第一種低層住居専用地域
建ぺい率 40%
容積率 100%
小学校区 大社小学校
中学校区 大社中学校
取引態様 仲介
特徴 ◆東向き陽当たり良好!
◆土地面積約51.34坪あり
◆2015年3月に三井ホーム(株)施工の美宅です
◆建物面積33.06坪の2SLDKです
◆LD の上部に吹き抜けあり/2階ホールに作業スペースあり/主寝室約9帖は大型のウォークインクローゼットあり/玄関に大型のシューズインクローゼットあり /駐車場あり
◆阪急「夙川駅」徒歩15分・「苦楽園口駅」徒歩13分/JR「さくら夙川駅」徒歩16分
◆西田公園・徒歩5分/コープ夙川・徒歩9分
◆人気の大社小学校・大社中学校区です
※掲載されている物件データが現状と異なる場合は現状を優先します。

更新情報

情報更新日 2026年03月17日
次回更新予定日 2026年03月18日
取引条件有効期限 2026年03月17日

ローンシミュレーション

物件価格 14,300万円
頭金 万円
金利
借入期間
再計算
月々の返済額
年間の返済額
返済総額
利息合計
※ 毎回の返済額が開始から終了まで均等となる「元利均等返済」で算出しています。
※ 金利は期間中固定となる固定金利を採用しています。
※ 月々の返済額は小数点以下を繰り上げしております
※ シミュレーションでの結果は、あくまでも目安で、概算になります。実際にローン契約をする際は、詳細を金融機関にご確認ください。
※ 実際のローン契約時には諸費用・税金(手数料や印紙税、保証料など)が別途かかりますので、契約の際にご確認ください。

物件番号「27465」をお伝えください。

電話でお問合せ
電話でお問合せ メールでお問合せ
メールでお問合せ
OK