西宮市甲陽園西山町5-7

価格 10,980万円

1/10

物件番号「27425」をお伝えください。

電話でお問合せ

物件情報

価格 10,980万円
住所
西宮市甲陽園西山町5-7 地図
住居表示 
交通 阪急甲陽線 甲陽園駅まで 徒歩3分
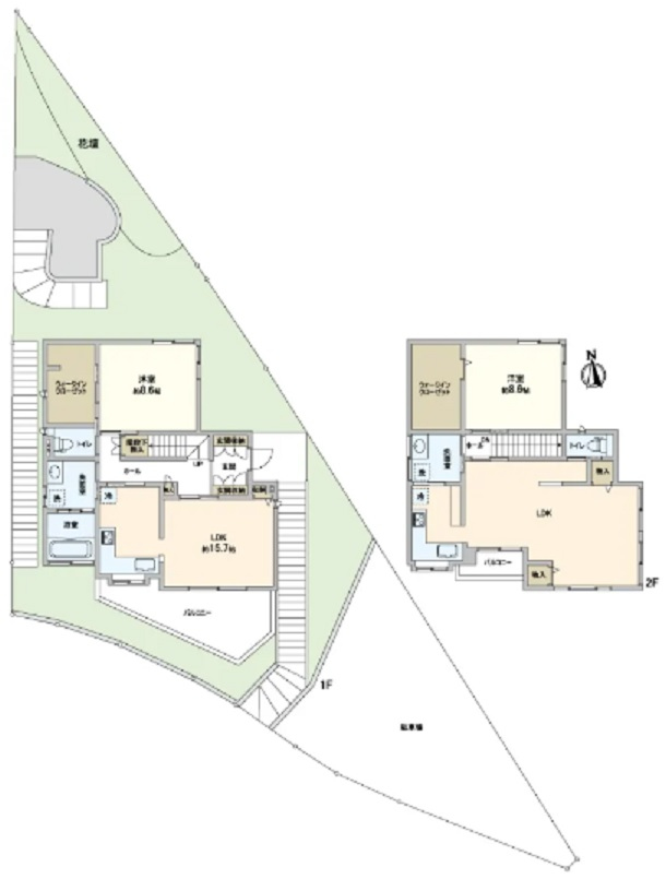
土地面積 264.51m²
建物面積 137.25m²
西暦築年月 2011/07
駐車場 3台可
間取 3LDK
建物構造 木造
物件名 中古一戸建て
接道 南西 5.2m(幅員) 公道 22.96m(接面)
私道面積 -
用途地域 第一種低層住居専用地域
建ぺい率 40%
容積率 100%
小学校区 甲陽園小学校
中学校区 大社中学校
取引態様 仲介
特徴 ◆南西向き陽当たり通風良好!
◆南ひな壇立地で西宮市内と海を望む眺望あり
◆土地面積約80.01坪あり
◆2011年にセキスイハウス施工で建物面積約41.51坪の2LDK+2LDKです
◆1階の天井高は約2.5mあり/LDKは床暖房付/アルミ樹脂複合サッシ/お庭でバーべキューも出来ます
◆カースペースは3台分あり
◆阪急「甲陽園駅」徒歩3分
◆阪急オアシス甲陽園店・徒歩3分/いかりスーパー甲陽園店・徒歩4分/ファミリーマート甲陽園駅前店。徒歩5分
※掲載されている物件データが現状と異なる場合は現状を優先します。

更新情報

情報更新日 2026年01月31日
次回更新予定日 2026年02月01日
取引条件有効期限 2026年01月31日

ローンシミュレーション

物件価格 10,980万円
頭金 万円
金利
借入期間
再計算
月々の返済額
年間の返済額
返済総額
利息合計
※ 毎回の返済額が開始から終了まで均等となる「元利均等返済」で算出しています。
※ 金利は期間中固定となる固定金利を採用しています。
※ 月々の返済額は小数点以下を繰り上げしております
※ シミュレーションでの結果は、あくまでも目安で、概算になります。実際にローン契約をする際は、詳細を金融機関にご確認ください。
※ 実際のローン契約時には諸費用・税金(手数料や印紙税、保証料など)が別途かかりますので、契約の際にご確認ください。

物件番号「27425」をお伝えください。

電話でお問合せ
電話でお問合せ メールでお問合せ
メールでお問合せ
OK