|
中古マンション
[価格]
1,780万円
ラ・アセーラ芦屋
|
||||
|---|---|---|---|---|
| 所在地 | 沿線/駅 バス徒歩 |
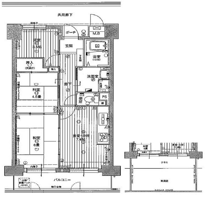
西暦築年月 間取 |
専有面積 バルコニ面積 |
現況 引渡時期 |
| 芦屋市大東町8-5 | 阪神本線/打出駅 徒歩10分 |
1998/03 3DK |
47.72m² 18.9m² |
空家 即時 |

| 物件番号 | 28271 | ||
|---|---|---|---|
| 交通 | 阪神本線 打出駅まで 徒歩10分
阪神本線 香櫨園駅まで 徒歩13分 JR東海道線 さくら夙川駅まで 徒歩23分 |
学区 | 打出浜小学校 720m 精道中学校 240m |
| 方向 | 東 | 階/階建 | 1階/地上8階 地下2階建 |
| 管理費 | 6,680円 | 修繕積立費 | 5,240円 |
| 駐車場 | 空有 | 駐車場月額 | 12,000円 |
| 管理形態 | 全部委託 | 管理会社 | 三菱地所コミュニティ(株) |
| 建物構造 | 鉄筋コンクリート造 | 棟総戸数 | 136戸 |
| 用途地域1 | 第一種中高層住居専用地域 | 取引態様 | 仲介 |
| 特色 | 陽当たり良好、庭付、駐車場・空き有り、駅徒歩10分以内、2沿線利用可 | ||
| 取引条件有効期限 | 2026年03月01日 | ||
|
地図を右クリックでルート検索が可能です。
|